|
|
|
| 浮球液位控制器 |
| 產品型號:RUQK |
|
|
|
概述:
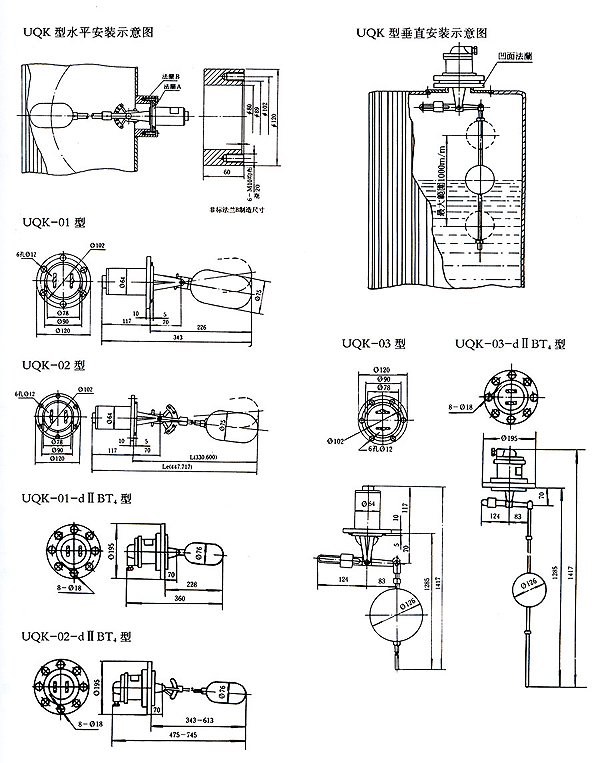
UQK型浮球液位控制器適用于對各種容器內液體的液位控制,當液位到達上、下切換值時,控制器觸點發出通斷開關式信號。
產品系列分防爆和非防爆兩大類,防爆型能用于易燃和易爆介質為1.2級及A、B、C組承壓容器的液位控制。
控制器不適用于對黃銅、不銹鋼等材料有較強腐蝕作用以及含有導磁雜質的介質。 |
|
主要技術參數:
|
外形
|
型號名稱
|
防爆等級
|
介質壓力(MPa)
|
介質溫度(℃)
|
切換差(mm)
|
整定方式
|
安裝形式
|
電源及及觸點容量和壽命
|
 |
UQK-01型浮球液位控制器
|
|
1.0
|
150
|
≤14
|
不可調
|
水平
|
交流:220V、1.5A、110V、2.5A
直流:24V、2.5A、240V、0.5A
壽命:5×104
|
|
UQK-01-dIIBT4型防爆浮球液位控制器
|
dIIBT4
|
4.0
|
 |
UQK-02型浮球液位控制器
|
|
1.0
|
150
|
25~550
|
有級可調
|
水平
|
|
UQK-02-dIIBT4型防爆浮球液位控制器
|
dIIBT4
|
4.0
|
 |
UQK-03型浮球液位控制器
|
|
1.0
|
150
|
8~1000
|
無級可調
|
垂直
|
|
UQK-03-dIIBT4型防爆浮球液位控制器
|
dIIBT4
|
4.0
|
|
|
結構原理:
UQK型浮球液位控制器由互為隔離的浮球組和觸頭組二大部分組成。
當被測液位升高或降低時,浮球1隨之升降,使其端部的磁鋼2上、下擺動,通過磁力作用,推斥安裝在外殼3內相同磁極的磁鋼4上、下擺動,其另一端的動觸點5便在靜觸頭1-1及2-2間連通或斷開。
|
|
|
|
|